Objektart
Adresse
Objektdaten
Informationen
Ausstattung
Details
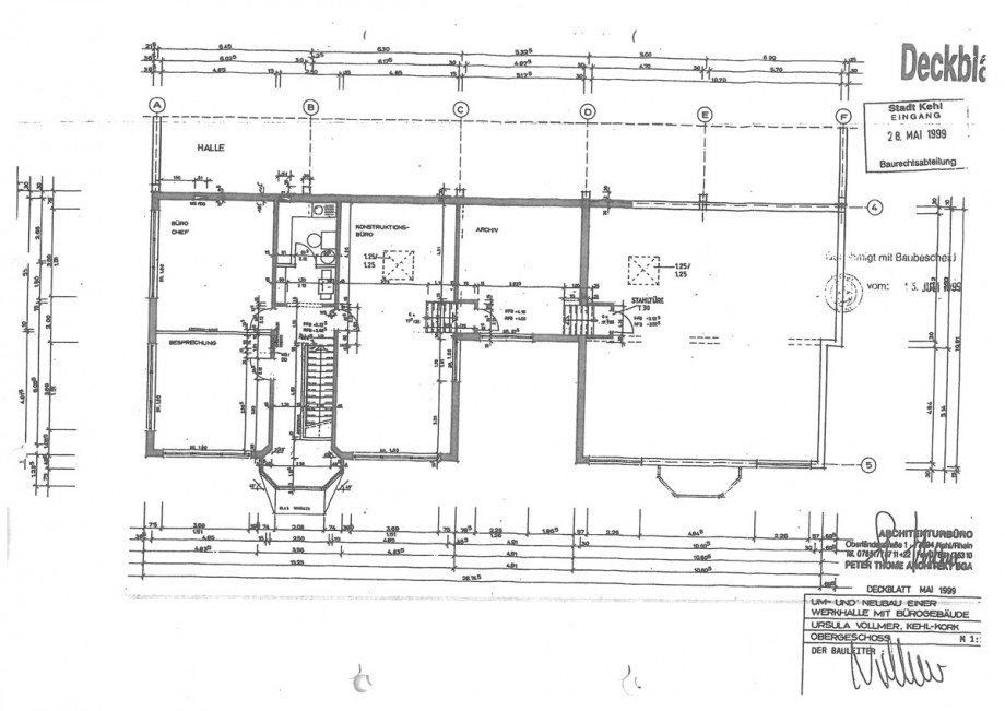
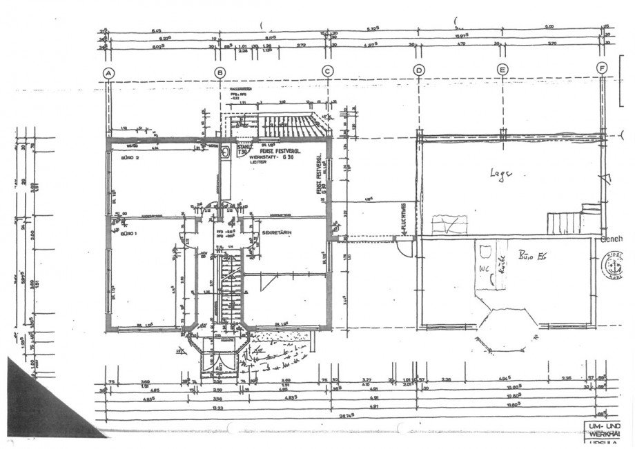
Zur Vermietung steht eine gepflegte und alarmgesicherte Gewerbeeinheit in attraktiver Lage von Kehl-Kork - ideal für Unternehmen, die eine Kombination aus Büro- und Lagerflächen suchen.
Die flexibel gestaltbaren Büroflächen bieten eine Nutzfläche von ca. 56 m² bis 230 m² und können individuell auf Ihre Anforderungen zugeschnitten werden. Ergänzt wird das Angebot durch ein direkt angeschlossenes Lager mit ca. 58 m², das sich optimal für Lagerung, Versand oder leichten Produktionsbedarf eignet. Die Kaltmiete beträgt 9,50 EUR/m².
Die Einheit überzeugt durch ihre durchdachte Aufteilung, gute Ausstattung und hervorragende Erreichbarkeit - eine ideale Lösung für verschiedenste gewerbliche Nutzungen.
Mietkonditionen:
Die Kaltmiete richtet sich nach der gewünschten Fläche und ist auf Anfrage erhältlich.
Nebenkosten werden nach Vereinbarung berechnet.
Für den Mieter fällt eine Provision in Höhe von 2,00 Monatskaltmieten inkl. MwSt. an.
Die Gewerbeeinheit überzeugt durch ihre helle und moderne Büroausstattung, die ein angenehmes Arbeitsumfeld schafft. Das angeschlossene Lager ist direkt vom Büro aus zugänglich und bietet praktische Lagermöglichkeiten. Eine voll ausgestattete Küche sowie separate sanitäre Anlagen (WC) stehen zur Verfügung. Für zusätzliche Sicherheit sorgt eine installierte Alarmanlage. Direkt vor dem Gebäude befinden sich ausreichend Parkplätze für Mitarbeiter und Besucher. Das Gebäude wurde im Jahr 1999 errichtet und wird über eine effiziente Ölheizung beheizt. Der Energieverbrauch beträgt laut Verbrauchsausweis 87,3 kWh/m²·a.
Die Immobilie befindet sich in Kehl-Kork, einem verkehrsgünstig gelegenen Ortsteil von Kehl - ideal für Unternehmen mit lokalem sowie grenzüberschreitendem Geschäftsbezug. Die Schnellstraße B28 ist in nur ca. 2 Minuten erreichbar, die Autobahn A5 (Anschlussstelle Appenweier) liegt etwa 10 Minuten entfernt. Darüber hinaus besteht eine direkte Bahnanbindung an die Strecke Straßburg-Offenburg, was sowohl für Mitarbeiter als auch für den Warenverkehr von Vorteil ist.
Dank der Nähe zur französischen Grenze und der schnellen Erreichbarkeit von Straßburg bietet der Standort optimale Voraussetzungen für internationale Geschäftsaktivitäten. Besonders für Unternehmen aus den Bereichen Logistik, Handel oder Dienstleistung ist die zentrale Lage zwischen Deutschland und Frankreich ein klarer Standortvorteil.
Alarmgesicherte Gewerbeeinheit
Flexible Büroflächen (56 m² - 230 m²)
Angeschlossenes Lager (ca. 58 m²)
Gepflegter Zustand
Sofort verfügbar
Attraktive Lage in Kehl-Kork, gute Erreichbarkeit
Geeignet für: Dienstleister, Handelsunternehmen, Start-ups, Handwerksbetriebe und viele mehr.
Ich bin damit einverstanden, dass mir Karten von Google angezeigt werden. Es gelten die Datenschutzbedingungen von Google (https://policies.google.com/privacy).
Ich bin einverstanden